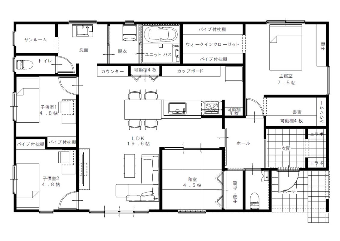
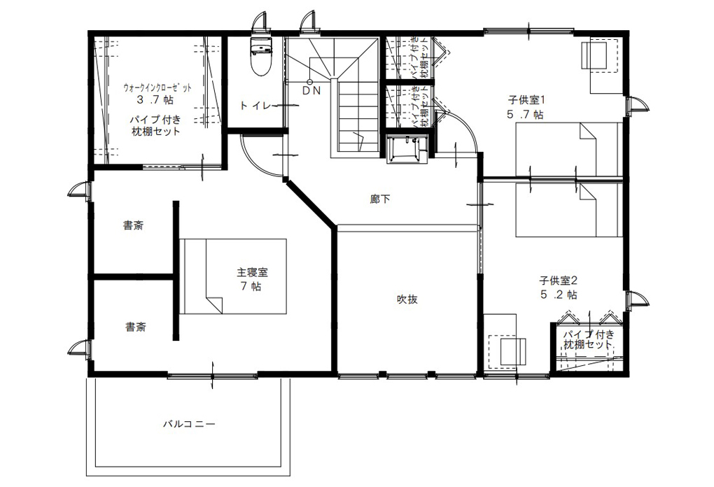
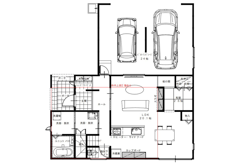
plan01
家事がスムーズ、暮らしが広がる。
26坪の賢い家。
- 建物価格
- 2,450万円
- 延床面積
- 86.12m²(26.05坪)

お支払いイメージ(税込)example
- 建物価格
- 2,450万円
- 土地価格(自社地)
- 700万円
- その他費用
諸費用はお客様によって異なりますので
詳しくはお問い合わせください。
- 総合価格
- 3,150万円
- 月々のお支払い
- 8.4万円
※あくまで概算となります。※上記は弊社保有の土地に建物をセットした場合のお支払いイメージです。※月々のお支払いイメージの金額は、金利1.3% 40年ローン、ボーナス返済分なしの場合です。























